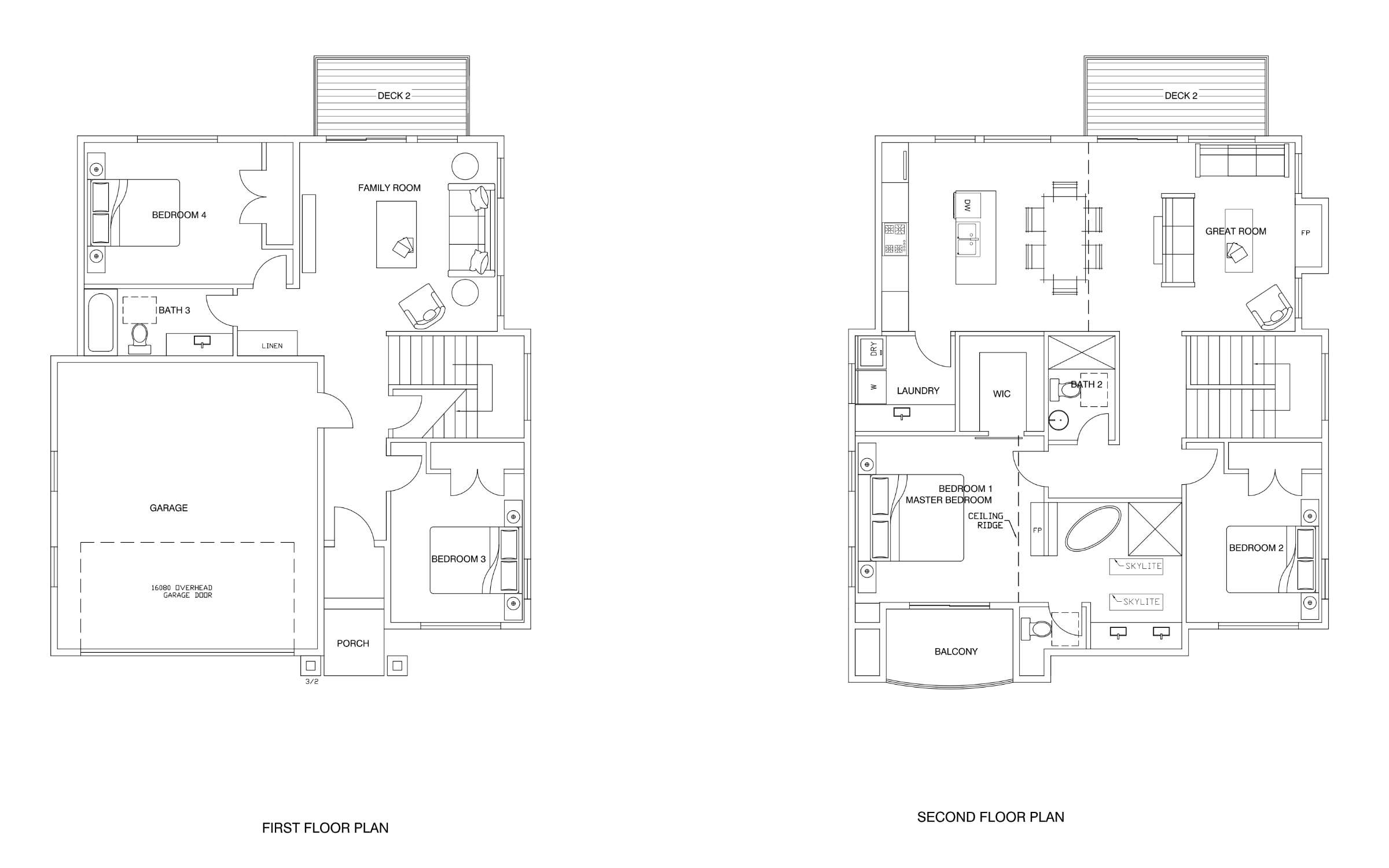
Hunkpapa

  • 4 bed
  • 3 bath
  • 2 car garage
  • 2047 sq. feet

Existing models can be modified and customized to your needs.

Our Mountain Modern designs capture the spirit of mountain architecture, which results in truly unique homes for our clients. SHEMSS has been designing modern homes with open concept spaces for their clients, and the SHEMSS models also feature open concept design.

Open concept interior design is all around highly desired in residential homes. The floor-to-ceiling window fronts provide the living area with plenty of daylight and a very modern fireplace which creates irresistible coziness and warmth. Kitchen Island, decor, and even countertops, hardware, and kitchen appliances. Values that can be discovered behind each door drawer of their kitchens. Home is art.

Built & Designed by SHEMSS

Ready to Evolve?

The Home of the Future is Waiting for You

Get a quote

What We Do

Finding a Lot

Selecting a lot is an exciting and potentially daunting first step in the construction process. With decades of experience in new builds, SHEMSS is well versed in the intricacies of site selection. We will make sure that your new home finds its perfect footing. Our extended network includes realtors, surveyors, and specialists who are key assets to our team.

Designing Your Home

Step two is where the fun really begins, the designing of your dream home. We offer several base designs that are fully customizable to create a unique space that fits your lifestyle and expresses who you are. Our clients can choose to be as “hands-on” or as “hands-off” as they wish. Our process is tailored to be streamlined, innovative, and fun.

Applying for Permits

At SHEMSS, we’re pros at efficiently navigating through the permit process. With decades of building experience and hundreds of state and local code inspections passed translate to a painless build with minimal hold-ups.

Building Your Home

Buckle up! Once the site work is complete, the countdown begins. In as little as seven months you could be living in your new SHEMSS home. Blink and you just might miss it.

Specs



Features
  • Expansive 540 SF of Glass Windows and Doors
  • “The Fall of Light” Hunkpapa
  • Architectural Awnings
  • LED Lighting
  • Spacious Master Suite and Bedrooms
  • Open Concept Entertaining

Specifications
  • 4 bed
  • 3 bath
  • 2 car garage
  • 2047 sq. feet

Options
  • Classic Roof or Modern Roof
  • Multiple Cabinets Styles
  • Appliance upgrades
  • Solar upgrade
  • Multiple flooring choices
  • Multiple countertop choices
  • NanaWall
  • Siding upgrade

We Build Faster

SHEMSS, moving at a pace of modern living.

By choosing SHEMSS Homes, you’ve signed up to be at the forefront of a progressive movement disrupting the construction industry.

We're flipping the traditional notion of what it means to build a home on its head. This means no more:

  • Delays
  • Stress
  • Red tape
  • Hidden costs
  • Confusion

We provide a simple path to an affordable, thoughtfully designed home without the headaches of traditional builds. You spend less time worrying and get into your new home sooner!

  • SHEMSS home
  • New custom home
  • New custom home teardown